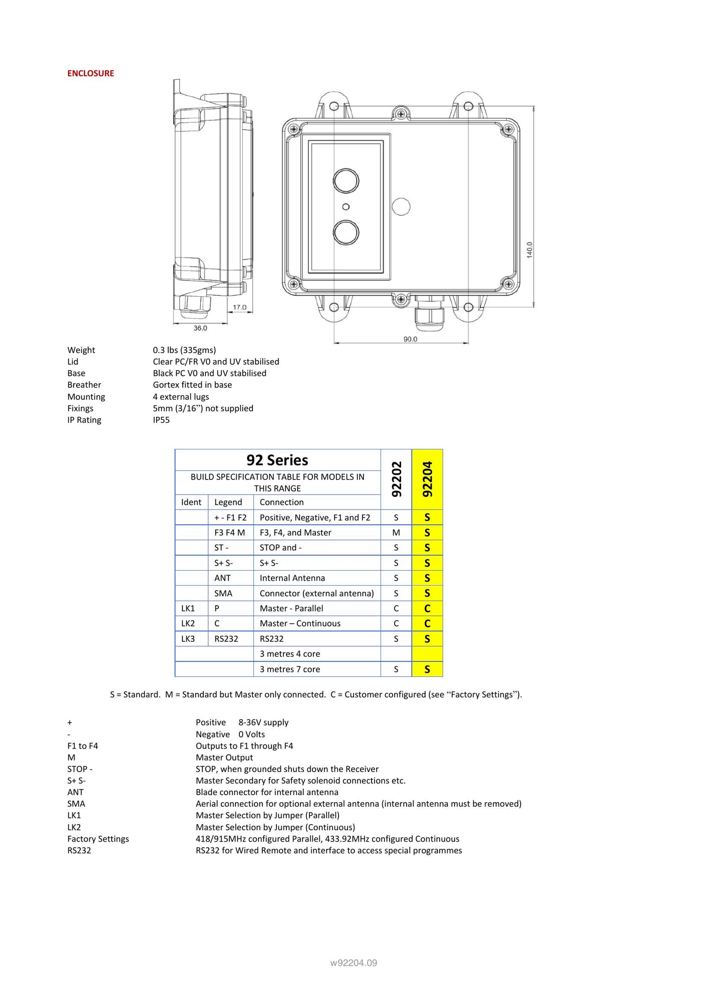
92204 - 4 Function with IP Transmitter

Download Spec Sheet PDF